Waterfront Cottage on Georgian Bay near Honey Harbour | Cottage in Georgian Bay

4 Bedroom Cottage in Georgian Bay
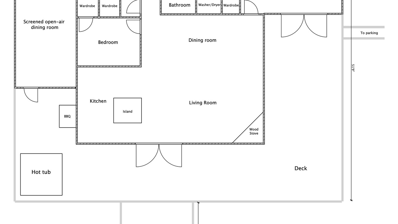
Woods Landing Cottage
Situated on 8 acres with almost 900 feet of waterfront on beautiful Georgian Bay, Woods Landing is very private year round cottage retreat for a fun filled family vacation or a relaxing weekend getaway.
This open concept three bedroom cottage with den was newly renovated in 2018. It has heated floors in the kitchen and bathrooms and a large granite island with seating. There are two large dining tables, one in the great room which has vaulted ceilings and the other in the beautiful three seasons Muskoka room. The spectacular multi level deck with glass railings gives you an uninterrupted view of the bay, whether having a coffee, a glass of wine or relaxing in the hot tub. The fire pit area overlooks the lake and is equipped with several Muskoka chairs for you to enjoy a campfire. Please note there is video surveillance on the exterior entrance of the cottage/property for security.
Nestled at the end of the bay which is great for swimming off the dock without a lot of boat traffic. For the fishing enthusiast you can throw a line in right off the dock or take a 15 minute boat ride to the small craft route on the open waters of Georgian Bay.
Enjoy this cottage all year long with lots to do in the winter months including snowmobiling(easy access to the trails right from the cottage), tobogganing or just go out and enjoy the fresh air and come in and cozy up in front of the wood burning stove. Explore nature at the popular McCrae lake conservation trail which is located just down the road. Go skiing at Mount St Louis Moonstone just 30 min away.
From late June to mid September minimum 7 day booking(Fri - Fri). 3 day minimum the rest of the year.
Located just 1.5 hours North of Toronto.
Please note we have 2 cameras on site for security. One on the lake side and one on the driveway side
A place to make memories that will last a lifetime.
Waterfront Cottage on Georgian Bay near Honey Harbour is located in Georgian Bay. Waterfront Cottage on Georgian Bay near Honey Harbour provides accommodation, featuring Air Conditioner, Balcony/Terrace, Fireplace/Heating, among other amenities. This Cottage features Air Conditioner, Balcony/Terrace, Fireplace/Heating, to make your stay a comfortable one.
Waterfront Cottage on Georgian Bay near Honey Harbour has 4 Bedrooms , 2 Bathrooms, and max occupancy of 8 people. The minimum rental for this property is 1 nights, but this can change depending on the season you plan on staying. Previous guests have given good rated it, and VRBO labeled it a top-rated Cottage because of the excellent services rendered by the owner or manager of this Cottage, and has consistently provided great experiences for their guests. Most families or guests that use it recommend it to their friends and some of them are repeat guests. Cottage has a friendly neighborhood, and the Georgian Bay has interesting places to visit. If you want to learn more about the Cottage in Georgian Bay, such as places to visit and things to do nearby, you can check below to learn more.
Amenities
Policies
Extra-person charges may apply and vary depending on property policy government-issued photo identification and a credit card, debit card, or cash deposit may be required at check-in for incidental charges host has indicated there is a carbon monoxide detector on the property host has indicated there is a smoke detector on the property onsite parties or group events are strictly prohibited safety features at this property include a fire extinguisher, a first aid kit, and a deadbolt lock special requests are subject to availability upon check-in and may incur additional charges; special requests cannot be guaranteed this property is managed through our partner, vrbo. you will receive an email from vrbo with a link to a vrbo account, where you can change or cancel your reservation